Skip to content

Bureau Parmentier

B U R E A U     P A R M E N T I E R

Menu
  • Home
  • Portfolio
  • Kaarten
  • Tafeltjes
  • Contact

  • Portfolio »
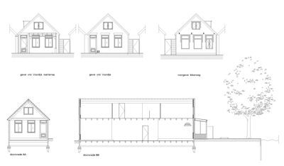
  • Meerweg, Abcoude
IMG_8805
IMG_8807
hsfile_6585
hsfile_6587
Stalen-deur-2025-05-08-09_02_51

B U R E A U    P A R M E N T I E R

Bilderdijkkade 38 A2
1053VE  Amsterdam
info@bureauparmentier.nl
m. +31 06 29 430 645

Facebook Linkedin

KvK nummer: 343 31 747
BTW nummer: NL 00125 6605 B52

(C) Orion Computerworld 2025